€55,000
КОД CN8202
Плюс НДС
Пафос
Tremithousa
Жилая Земля
Земельный участок: 480m²
Зона земельного участка: Ka6a
Плотность застройки: 90%
Фактор Покрытия: 50%
максимальные этажи: 2
максимальная высота : 10

ПРОДАНО

Продано : Жилая Земля - Tremithousa - €55,000

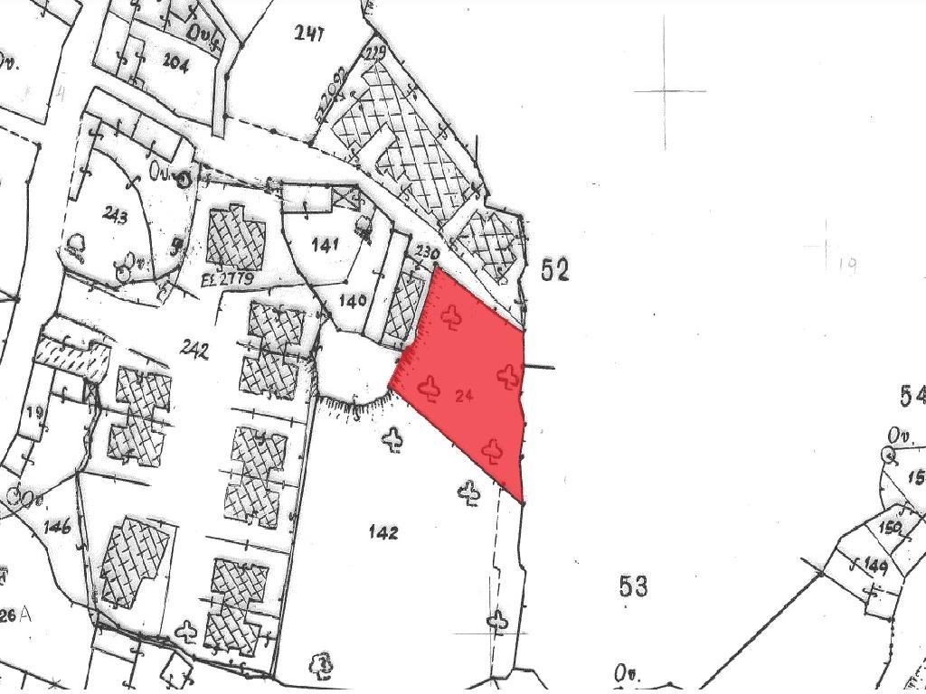
Residential land available for purchase in the charming Tremithousa community of the Paphos district. Conveniently located approximately 215 meters south of Agiou Neofytou Avenue and approximately 380 meters northeast of Agiou Georgiou church.

This property features an irregular shape and sloping surface, with direct access to a public registered road along its northern boundary boasting a frontage of approximately 19 meters.

Upon completion of an official survey, the land measures a total area of 480 sq.m. Positioned within the residential Town Planning Zone Κα6α, this plot allows for the construction of a two-storey building with a generous building factor of 90%.

Don't miss out on the opportunity to invest in this prime real estate for your dream home or development project in this desirable area.

Доступ к дороге
Доступна вода
Доступна телефонная линия
Доступно электричество
Жилая зона
Инвестиции
На главной дороге
Плюс НДС
Титул
Тихий жилой район
город 5 мин езды