€110,000
КОД CN8865
Пафос
Polis
Квартира
Год постройки : 2002
Спальни: 1
Ванны : 1
покрытое: 87m²

ПРОДАНО

Продано : Квартира - Polis - €110,000

We are pleased to present an attractive apartment for sale, ideally situated in a vibrant tourist area of Polis Chrysochous in Paphos, just 175 meters from the municipal building on a spacious plot of 5,241 m².

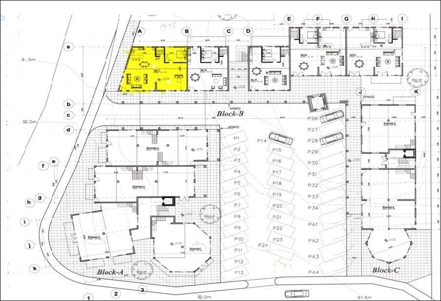
This property is part of the mixed-use residential and commercial complex known as ‘St. Andrews Plaza,’ which features a total of seven shops and twenty-one apartments across three blocks. The complex includes a ground floor, mezzanine, first floor, and ample parking facilities accommodating up to 38 vehicles. Completed in 2002, the development offers a blend of convenience and comfort.

The available asset is a charming ground floor apartment located in Block B. It comprises a welcoming living room, a functional kitchen, one cozy bedroom, covered verandas, and a bathroom with a WC.

 - Covered Area: 87 m²

- Covered Verandas: 30 m²

- Bedrooms: 1

- Bathrooms: 1

- WC: 1

 For further information or to arrange a viewing, please do not hesitate to contact us.

Инвестиции
Титул